7 500 000 Р 92 630 $ или 79 720

Информация о коттедже

110 м2
Площадь
2
Этажность
7 cоток
Участок

Дополнительная информация

Дом продаётся вместе с участком
есть
Развернуть
Агент
+7 (908) 530-53-12
Начать чат с агентом

Дом в Пензенская область, с. Бессоновка ул. Кленовая, 46 (110 м)

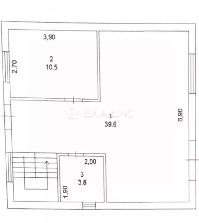
Код объекта: 1779760. Предлагаем Вашему вниманию 2-этажный коттедж в экoлoгически чистом районе ближайшего пригорода Пензы в с. Бессоновка, по ул. Кленовая.ВАЖНО, ПОСПИШИТЕ ДАННЫЙ ДОМ ВЫ МОЖЕТЕ ПРИОБРЕСТИ ПО УСЛОВИЯМ СЕЛЬСКАЯ ИПОТЕКА ПОД 3 .Площадь дома - 110,4 кв.м.Площадь кухни-гостиной - 31 кв.м.Площадь комнат: 10,5+11,1+14,4+11,4кв.м.Площадь земельного участка - 7,7 соток.Коммуникации: газ, вода, эл.энергия - 15 кВт, 3 фазы, канализация - яма.В доме произведен качественный современный ремонт: первый этаж- напольное покрытие- керамогранит, стены выровнены и оклеены обоями, натяжные потолки, межкомнатные двери, санузел -керамогранит + установлена вся сантехника. Второй этаж: на полу ламинат, стены-обои, натяжные потолки, санузел-плитка+ сантехника. Теплый пол во всем доме. Техническое описание дома:- Прочный блочный фундамент с ростверком.- Стены из пеноблока толщиной 300 мм марки D500.- Перекрытие из пустотных плит.- Потолок утеплен - 150 мм в перехлёст.- Крыша из качественной металлочерепицы- Пластиковые окна с двойным энергосберегающим стеклопакетом, 70 профиль- Фасад с декоративной штукатуркой, утепление 50 мм- Входная дверь с терморазрывом- Скрытая мембранная отмоскаКроме того, в коттеджном поселке ведется строительство частной школы и детского сада. Все документы готовы к продаже.Успейте купить этот ПРЕКРАСНЫЙ ДОМ ПОМОЩЬ В ОФОРМЛЕНИИ ИПОТЕКИ ВО ВСЕХ БАНКАХ ПЕНЗЫ.Для получения более подробной информации по данному объекту - ПРОСТО ПОЗВОНИТЕ

Читать полностью

    Для того, чтобы купить 2-этажный коттедж по адресу: Бессоновка, ул. Кленовая, 46, позвоните по телефону +7 (908) 530-53-12. Торопитесь! Объявление №50016355496 о продаже двухэтажного коттеджа опубликовано 17 октября 2025.

    Позвонить Написать
    7 500 000 Р92 630 $ или 79 720
    Агент
    +7 (908) 530-53-12
    Начать чат с агентом
    Похожие предложения
    Дом в Пензенская область, с. Бессоновка ул. Виноградная, 24 (202 м) - Фото 1
    Дом в Пензенская область, с. Бессоновка ул. Виноградная, 24 (202 м) - Фото 2
    2 этажа, общая площадь 202м², участок 10 соток

    Код объекта: 1809859. Исключительное предложение для тех, кто мечтает о собственном доме Продаётся дом в с. Бессоновка Пензенской области, по ул. Виноградная, 24.Этот дом, построенный в 2020 году, отвечает всем требованиям современного жилья. Общая площадь...
    • 2 эт.
    • 202 м²
    • 10 сот.
    7 500 000 Р
    Агент
    +7 (908) Показать номер
    Посмотреть контакты
    Дом в Пензенская область, с. Бессоновка ул. Городок, 23 (114 м) - Фото 1
    Дом в Пензенская область, с. Бессоновка ул. Городок, 23 (114 м) - Фото 2
    1 этаж, общая площадь 114м², участок 18 соток

    Код объекта: 1735740. Предлагаем Вашему вниманию дом по адресу: с. Бессоновка ул. Городок, 23.Шикарное расположение. Настоящая находка для тех, кто ищет комфортное и просторное жилье.Общая площадь: 114 кв.м.Жилая площадь: 62 кв.м.Площадь кухни: 14 кв.м.Площадь...
    • 1 эт.
    • 114 м²
    • 18 сот.
    7 500 000 Р
    Агент
    +7 (908) Показать номер
    Посмотреть контакты
    Дом в Пензенская область, с. Бессоновка проезд 2-й Магистральный, 7А ... - Фото 1
    Дом в Пензенская область, с. Бессоновка проезд 2-й Магистральный, 7А ... - Фото 2
    1 этаж, общая площадь 103м², участок 9 соток

    Код объекта: 1708573. Продается дом с земельном участком в самом начале с. Бессоновка 2-й Магистральный проезд, 7А.Дом 2025 года постройки в наличии, с коммуникациями.Дом подходит под семейную ипотеку Уникальный дом со вторым светом, мягкой кровлей и...
    • 1 эт.
    • 103 м²
    • 9 сот.
    7 600 000 Р
    Агент
    +7 (908) Показать номер
    Посмотреть контакты
    Коттедж в Пензенская область, с. Бессоновка ул. Виноградная, 24 (220 ... - Фото 1
    Коттедж в Пензенская область, с. Бессоновка ул. Виноградная, 24 (220 ... - Фото 2
    2 этажа, общая площадь 220м², участок 10 соток

    в продаже отличный дом все коммуникации имеется газ оплачен осталось завести электричество 15 киловатт фундамент ленточно свайный + блоки , высокий цоколь .Под домом техническое помещение 10 соток земли все вопросы по телефону ипотека проходит
    • 2 эт.
    • 220 м²
    • 10 сот.
    7 500 000 Р
    Агент
    +7 (986) Показать номер
    Посмотреть контакты
    Дом в Пензенская область, Бессоновский район, с. Ухтинка Рябиновая ... - Фото 1
    Дом в Пензенская область, Бессоновский район, с. Ухтинка Рябиновая ... - Фото 2
    2 этажа, общая площадь 96м², участок 6 соток

    Код объекта: 1803301. Уникальное предложение В продаже дом, готовый к заселению в с. Ухтинка по ул. Рябиновая.С ремонтом, мебелью и техникой ОБЩИЕ СВЕДЕНИЯ:- Общая площадь дома 96 кв.м, 2 этажа- на 1 этаже кухня-гостиная, с/у на 2 этаже 3 спальные...
    • 2 эт.
    • 96 м²
    • 6 сот.
    7 490 000 Р
    Агент
    +7 (908) Показать номер
    Посмотреть контакты

    Не нашли подходящего объявления?

    Оставьте заявку, и наши риэлторы подберут купить дом в районе Бессоновки

    (0)