5 472 180 Р 66 240 $ или 56 490

Информация о квартире

47 м2
Площадь
15 м2
Жилая
15 м2
Кухня
1
Комната
17
Этаж
24
Этажность
Развернуть
Агент
Офис продаж ЖК Созвездие (Строительный холдинг Термодом)
+7 (908) 530-11-48
Начать чат с агентом

1-комнатная квартира: Засечное, микрорайон Город Спутник, жилой ...

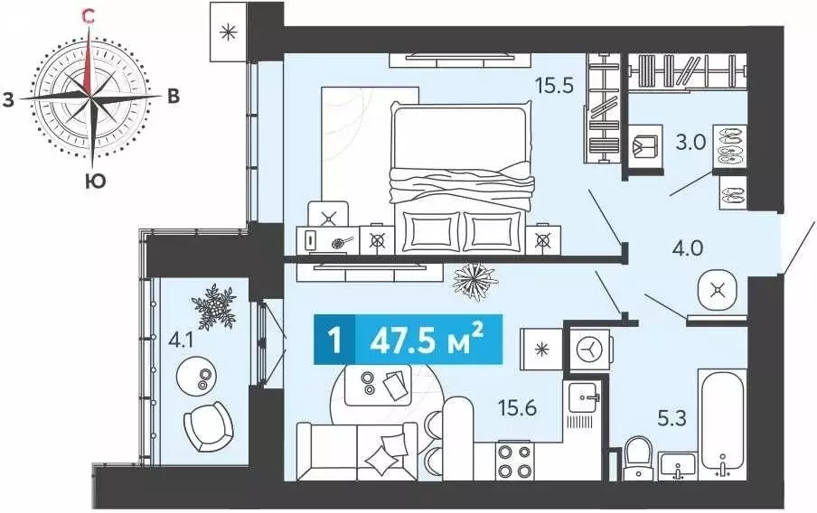
Apт.2435143. Однокомнатная квартира с первичной отделкой в ЖК Созвездие на 17 этаже. Общая площадь: 47.5 кв.м., жилая: 15.5 кв.м., площадь просторной кухни-столовой: 15.6 кв.м. Все окна выходят на одну сторону. В квартире один балкон, один совмещенный санузел. Высота потолков 2.7 м. Квартира находится в корпусе Феникс. Дом кирпичный, одноподъездный, высотой 17 этажей. На этаже 8 квартир. В подъезде 1 пассажирский и 1 грузовой лифт. Окончание строительства - 3 квартал 2026 года. Оформление сделки по договору долевого участия. Третья очередь ЖК «Созвездие – новые звезды вселенной Города Спутника. У каждого из домов жилого комплекса будет свое название. И первый дом – «Лира . В новых домах «Созвездия мы сохраняем гармоничный баланс эстетики зданий и функциональности внутреннего содержания двора. Во дворе хочется тишины, космической безмятежности и космических же, безграничных возможностей. Именно таким будет двор «Лиры . Взять, например, площадку для игры в настольной теннис. Самые внимательные увидят здесь кольца Сатурна. Или игровую площадку: здесь батуты затерялись в «кратерном поле . А в световой арке творческие жители увидят не просто классный арт-объект и место для необычный фото в соцсетях, но след от ракеты или космического корабля, улетевшего покорять новые миры. Точкой притяжения и любимым местом жителей станет инсталляция «Планета с фонтаном. Окруженная амфитеатром и зонами тихого отдыха, она соберет вокруг себя и взрослых, и детей. Во дворе «Лиры будет чем заняться детям, их родителям, бабушкам и дедушкам. Появится зона для настольных игр, амфитеатр, воркаут-комплексы и велотренажер, детский канатный комплекс, игровые островки, балансиры, песочницы. В холлах третьей очереди серо-синие тона гармонично дополняются нежными голубыми и бежевыми оттенками, создавая атмосферу тишины и умиротворения. Здесь нет лишних деталей, заполняющих визуальное пространство. Удобные кресла и диваны с журнальными столиками, продуманная навигация и дизайнерское освещение. Все для спокойного комфорта жителей, для того, чтобы настроиться на достижения нового дня. Свои акценты и детали со временем подарят неповторимое чувство — радость узнавания и комфортное ощущение дома еще с порога. Для вашего удобства мы обустроим в холле «Лиры мягкую зону ожидания, лапомойку и колясочную. Входы в подъезд – без ступеней, выходы – во двор и на улицу, а входная дверь – в стеклянной входной группе, чтобы в непогоду вам не пришлось мерзнуть или мокнуть под дождем, пока вы достаете ключи от домофона.

Читать полностью
    Позвонить Написать
    5 472 180 Р66 240 $ или 56 490
    Агент
    Офис продаж ЖК Созвездие (Строительный холдинг Термодом)
    +7 (908) 530-11-48
    Начать чат с агентом
    Похожие предложения в Засечном
    Квартира-студия: Засечное, Прибрежный бульвар, 5 (45.59 м) - Фото 1
    Квартира-студия: Засечное, Прибрежный бульвар, 5 (45.59 м) - Фото 2
    студия, общая площадь 45м², жилая 31м²

    Apт.2434970. Продается однокомнатная квартира-студия от застройщика с первичной отделкой в ЖК Созвездие на 10 этаже. Общая площадь: 45.59 кв.м., площадь гостиной 31.71 кв.м., из которых 6.43 кв.м. выделено под кухонную зону. Все окна выходят на одну...
    • 45 м²
    • студия-ком
    • 10/24 эт.
    5 466 720 Р
    Агент
    +7 (908) Показать номер
    Посмотреть контакты
    Квартира-студия: Засечное, Прибрежный бульвар, 5 (45.59 м) - Фото 1
    Квартира-студия: Засечное, Прибрежный бульвар, 5 (45.59 м) - Фото 2
    студия, общая площадь 45м², жилая 31м²

    Apт.2434976. Просторная однокомнатная квартира-студия с первичной отделкой в ЖК Созвездие на 12 этаже. Общая площадь: 45.59 кв.м., площадь гостиной 31.71 кв.м., из которых 6.43 кв.м. выделено под кухонную зону. Все окна выходят на одну сторону. В квартире...
    • 45 м²
    • студия-ком
    • 12/24 эт.
    5 466 720 Р
    Агент
    +7 (908) Показать номер
    Посмотреть контакты
    Квартира-студия: Засечное, Прибрежный бульвар, 5 (47.31 м) - Фото 1
    Квартира-студия: Засечное, Прибрежный бульвар, 5 (47.31 м) - Фото 2
    студия, общая площадь 47м², жилая 32м²

    Apт.2434968. 1-комн. квартира-студия от застройщика с первичной отделкой в ЖК Созвездие на 9 этаже. Общая площадь: 47.31 кв.м., площадь гостиной 32.51 кв.м., из которых 9.34 кв.м. выделено под кухонную зону. Все окна выходят на одну сторону. В квартире...
    • 47 м²
    • студия-ком
    • 9/24 эт.
    5 553 110 Р
    Агент
    +7 (908) Показать номер
    Посмотреть контакты
    Квартира-студия: Засечное, Прибрежный бульвар, 5 (47.31 м) - Фото 1
    Квартира-студия: Засечное, Прибрежный бульвар, 5 (47.31 м) - Фото 2
    студия, общая площадь 47м², жилая 32м²

    Apт.2434946. Просторная однокомнатная квартира-студия с первичной отделкой в ЖК Созвездие на 5 этаже. Общая площадь: 47.31 кв.м., площадь гостиной 32.51 кв.м., из которых 9.34 кв.м. выделено под кухонную зону. Все окна выходят на одну сторону. В квартире...
    • 47 м²
    • студия-ком
    • 5/24 эт.
    5 553 110 Р
    Агент
    +7 (908) Показать номер
    Посмотреть контакты
    Квартира-студия: Засечное, Прибрежный бульвар, 5 (47.31 м) - Фото 1
    Квартира-студия: Засечное, Прибрежный бульвар, 5 (47.31 м) - Фото 2
    студия, общая площадь 47м², жилая 32м²

    Apт.2434939. 1-комн. квартира-студия с первичной отделкой в ЖК Созвездие на 4 этаже. Общая площадь: 47.31 кв.м., площадь гостиной 32.51 кв.м., из которых 9.34 кв.м. выделено под кухонную зону. Все окна выходят на одну сторону. В квартире одна лоджия,...
    • 47 м²
    • студия-ком
    • 4/24 эт.
    5 448 510 Р
    Агент
    +7 (908) Показать номер
    Посмотреть контакты

    Не нашли подходящего объявления?

    Оставьте заявку, и наши риэлторы подберут квартиру в новостройке в районе Засечного

    (0)