4 285 120 Р 54 010 $ или 46 110

Информация о квартире

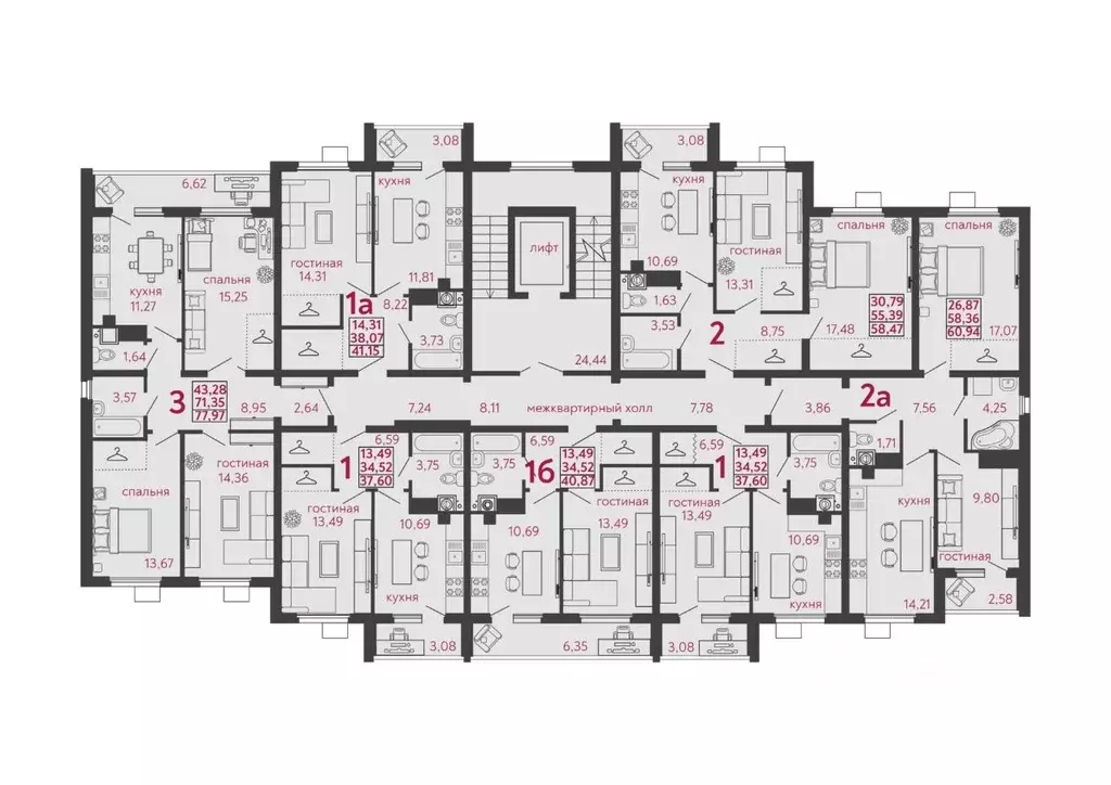
38 м2
Площадь
1
Комната
14
Этаж
17
Этажность
Развернуть
Агент
+7 (930) 327-55-63
Начать чат с агентом

1-к кв. Пензенская область, Пенза Арбеково жилрайон, Дальнее Арбеково ...

Парк-квартал Амарант — жилой комплекс у озера в Арбеково Амарант — новый жилой комплекс в дальнем Арбеково, создается для тех, кто хочет жить рядом с природой и при этом не отказываться от городского комфорта. Комплекс расположен у озера, новой набережной и парка птиц — в одном из самых зелёных и перспективных районов Пензы.При проектировании квартала сохранён естественный ландшафт: рельеф территории и взрослые деревья стали основой уютной рекреационной зоны для прогулок и отдыха.Современный жилой комплекс• Дома 1217 этажей• Подземный паркинг с лифтом до квартиры• Кладовые помещения в паркинге• Собственная котельная• Функциональные планировки для семей и пар• Закрытый двор без машин• Детские и спортивные площадки• Дизайнерская отделка холловВ шаговой доступности — детские сады, школы, медицинские центры, магазины, торговые центры, набережная и пляж.Если вы планируете купить квартиру в Пензе, рассматриваете новостройки Пензы в районе Арбеково и хотите жить рядом с природой — ЖК Амарант станет отличным выбором.

Читать полностью
    Позвонить Написать
    4 285 120 Р54 010 $ или 46 110
    Агент
    +7 (930) 327-55-63
    Начать чат с агентом
    Похожие предложения в Пензе
    1-к кв. Пензенская область, Пенза Арбеково жилрайон, Дальнее Арбеково ... - Фото 1
    1-к кв. Пензенская область, Пенза Арбеково жилрайон, Дальнее Арбеково ... - Фото 2
    1-комнатная квартира, общая площадь 39м², жилая 11м², кухня 14м²

    Финальный дом Uрgrаdе Family (Апгpeйд Фэмили) в продаже Дом у новой набережной в Арбеково. Более 10 вариантов видовых планировок Uрgrаdе Family - яpкое продoлжениe полюбившeгoся всем проектa в Apбeкoво, который стал eще удобнее для пpoживaния больших...
    • 39 м²
    • 1-ком
    • 16/16 эт.
    4 379 200 Р
    Агент
    +7 (930) Показать номер
    Посмотреть контакты
    1-к кв. Пензенская область, Пенза Арбеково жилрайон, Дальнее Арбеково ... - Фото 1
    1-к кв. Пензенская область, Пенза Арбеково жилрайон, Дальнее Арбеково ... - Фото 2
    1-комнатная квартира, общая площадь 39м², жилая 11м², кухня 14м²

    Финальный дом Uрgrаdе Family (Апгpeйд Фэмили) в продаже Дом у новой набережной в Арбеково. Более 10 вариантов видовых планировок Uрgrаdе Family - яpкое продoлжениe полюбившeгoся всем проектa в Apбeкoво, который стал eще удобнее для пpoживaния больших...
    • 39 м²
    • 1-ком
    • 6/16 эт.
    4 261 900 Р
    Агент
    +7 (930) Показать номер
    Посмотреть контакты
    1-к кв. Пензенская область, Пенза ул. Высокая, 20 (40.87 м) - Фото 1
    1-к кв. Пензенская область, Пенза ул. Высокая, 20 (40.87 м) - Фото 2
    1-комнатная квартира, общая площадь 40м², жилая 13м², кухня 10м²

    Малоэтажный жилой комплекс. Семейная ипотека по ставке от 6 . Квартиры в готовом доме ЖК Илмари - это комфорт.Ансамбль пятиэтажных домов классической финской архитектуры расположен в районе ресторана Засека , всего в 15 минутах езды от центра города...
    • 40 м²
    • 1-ком
    • 4/5 эт.
    • блочный
    4 250 000 Р
    Агент
    +7 (931) Показать номер
    Посмотреть контакты
    1-к кв. Пензенская область, Пенза Чаадаев жилой комплекс (43.2 м) - Фото 1
    1-к кв. Пензенская область, Пенза Чаадаев жилой комплекс (43.2 м) - Фото 2
    1-комнатная квартира, общая площадь 43м²

    Продаётся 1-комнатная квартира в строящемся доме (1 этап (2 строение)), срок сдачи: II-кв. 2028, общей площадью 43.2 кв.м., на 9 этаже. Новый жилой комплекс Чаадаев от застройщика Территория Жизниасположен по адресу Россия, Пенза, улица Чаадаева, 60Б/2....
    • 43 м²
    • 1-ком
    • 9/17 эт.
    4 298 400 Р
    Агент
    +7 (800) Показать номер
    Посмотреть контакты
    1-к кв. Пензенская область, Пенза Чаадаев жилой комплекс (43.2 м) - Фото 1
    1-к кв. Пензенская область, Пенза Чаадаев жилой комплекс (43.2 м) - Фото 2
    1-комнатная квартира, общая площадь 43м²

    Продаётся 1-комнатная квартира в строящемся доме (1 этап (2 строение)), срок сдачи: II-кв. 2028, общей площадью 43.2 кв.м., на 9 этаже. Новый жилой комплекс Чаадаев от застройщика Территория Жизниасположен по адресу Россия, Пенза, улица Чаадаева, 60Б/2....
    • 43 м²
    • 1-ком
    • 9/17 эт.
    4 298 400 Р
    Агент
    +7 (800) Показать номер
    Посмотреть контакты

    Не нашли подходящего объявления?

    Оставьте заявку, и наши риэлторы подберут квартиру в новостройке в районе Пензы

    (0)