2 400 000 Р 30 020 $ или 25 900

Информация о квартире

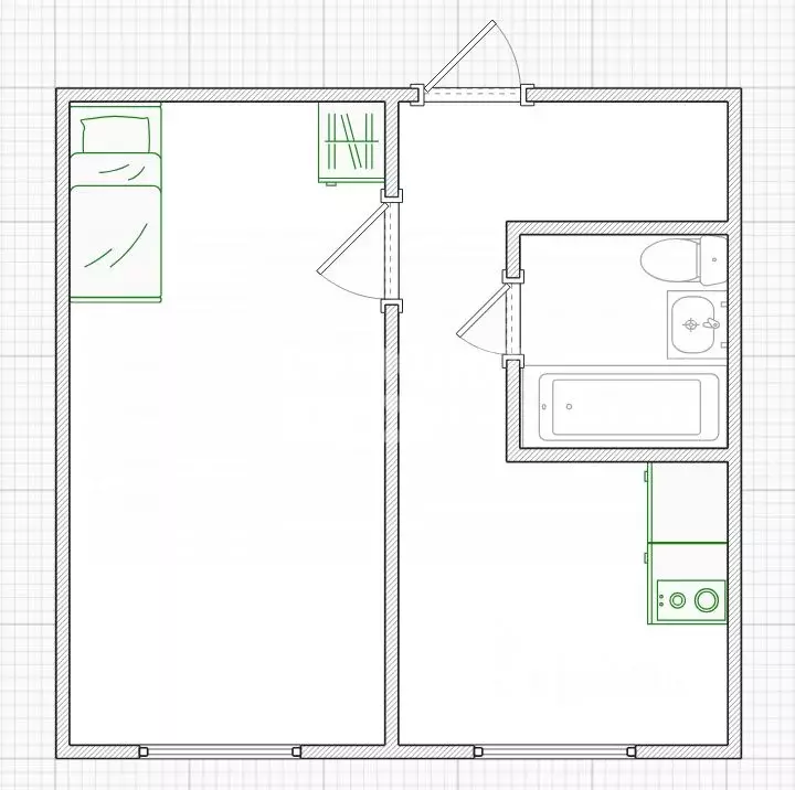
29 м2
Площадь
16 м2
Жилая
6 м2
Кухня
1
Комната
1
Этаж
5
Этажность

Дополнительная информация

Тип дома
кирпичный
Развернуть
Агент
+7 (908) 520-55-75
Начать чат с агентом

1-к кв. Пензенская область, Пенза ул. Пушанина, 16 (29.2 м)

Арт.Продается однокомнатная квартира по ул. Пушанина 16 , общей площадью 29.2 м2 , расположенной на 1-ом этаже 5-ти этажного кирпичного дома. Квартира требует небольшого ремонта, что позволяет создать для себя комфортные условия для жизни. Финские, качественные окна, электроразводка проведена. Не угловая. Ванна и санузел совмещённые. В квартире остается часть мебедли. Окна выходят во двор, квартира не угловая, а также в квартире установление новые батареи.Общая площадь 41.7 м2 Жилая площадь 16.7 мПлощадь кухни- 6м2Тихий двор Развитая инфраструктура - В шаговой доступности универсальный магазин Моя родня , магазин Сказка , Караван , почта, Магнит , аптека, ТЦ Слава , ТЦ Куб , супермаркет Ашан , остановка общественного транспорта, торгово-развлекательный комплекс Ритейл Парк , гипермаркет METRO Cash Carry , детский сад 120, детский сад 17, школа 20, детская поликлиника 7, поликлиника 10.Остановки в шаговой доступности. Отличная транспортная развязка. Любая форма оплаты. Квартира отлично подходит для молодой семьи, под сдачу в аренду.Агентство недвижимости Самолет Плюс Володарскогоаботает по всей России, поможет купить или продать любой вид жилой недвижимости в Пензе, Москве, Санкт-Петербурге, Краснодаре, Сочи, Турции. Все документы готовы к продаже, быстрый выход на сделку Звоните Приходите вместе посмотрим.

Читать полностью

    Для того, чтобы купить однокомнатную квартиру по адресу: Пенза, Первомайский, ул. Пушанина, 16, позвоните по телефону +7 (908) 520-55-75. Торопитесь! Объявление №30089913070 о продаже однокомнатной квартиры опубликовано 04 октября 2025.

    Позвонить Написать
    2 400 000 Р30 020 $ или 25 900
    Агент
    +7 (908) 520-55-75
    Начать чат с агентом
    Похожие предложения
    1-к кв. Пензенская область, Пенза Экспериментальная ул., 20 (29.4 м) - Фото 1
    1-к кв. Пензенская область, Пенза Экспериментальная ул., 20 (29.4 м) - Фото 2
    1-комнатная квартира, общая площадь 29м², жилая 16м², кухня 5м²

    Продается уютная однокомнатная квартира на 3 этаже 9-этажного дома. Общая площадь составляет 29.40 кв.м. Жилая 16.8 кв. м. Квартира находится в жилом районе с развитой инфраструктурой. Рядом расположены средняя общеобразовательная школа, детский сад,...
    • 29 м²
    • 1-ком
    • 3/9 эт.
    • кирпичный
    2 300 000 Р
    Агент
    +7 (987) Показать номер
    Посмотреть контакты
    1-к кв. Пензенская область, Пенза Экспериментальная ул., 10 (28.5 м) - Фото 1
    1-к кв. Пензенская область, Пенза Экспериментальная ул., 10 (28.5 м) - Фото 2
    1-комнатная квартира, общая площадь 28м², жилая 17м², кухня 5м²

    Код объекта: 1290785. Предлагаем Вашему вниманию 1-комнатную квартиру по ул. Экспериментальная, 10.Квартира находится на 5 этаже в 5-этажном кирпичном доме 1978 года постройки. Ремонт крыши был произведен в 2014 году.Общая площадь: 28.5 кв.м.Жилая площадь:...
    • 28 м²
    • 1-ком
    • 5/5 эт.
    • кирпичный
    2 380 000 Р
    Агент
    +7 (908) Показать номер
    Посмотреть контакты
    2-к кв. Пензенская область, Пенза Бийская ул., 17 (41.2 м) - Фото 1
    2-к кв. Пензенская область, Пенза Бийская ул., 17 (41.2 м) - Фото 2
    2-комнатная квартира, общая площадь 41м², жилая 22м², кухня 8м²

    САМАЯ БЮДЖЕТНАЯ ДВУШКА ДЛЯ ВАС В продаже 2-комнатная квартира ул. Бийская, д. 17.Квартира расположена на 3-м этаже 3-х этажного кирпичного дома (сейчас проводится капитальный ремонт крыши).Год постройки 1983.Общая площадь (без учета балкона) 41,2 м2.Жилая...
    • 41 м²
    • 2-ком
    • 3/3 эт.
    • кирпичный
    2 300 000 Р
    Агент
    +7 (950) Показать номер
    Посмотреть контакты
    1-к кв. Пензенская область, Пенза проезд 2-й Левицкого, 13 (33.5 м) - Фото 1
    1-к кв. Пензенская область, Пенза проезд 2-й Левицкого, 13 (33.5 м) - Фото 2
    1-комнатная квартира, общая площадь 33м², жилая 16м², кухня 7м²

    Код объекта: 1526855. Продаётся очень уютная и светлая 1-комнатная квартира в Пензе по адресу: 2-й проезд Левицкого, 13.Кирпичный дом 2011 года постройки с центральным отоплением и надёжными монолитными перекрытиями Квартира расположена на 2 этаже 3-этажного...
    • 33 м²
    • 1-ком
    • 2/3 эт.
    • кирпичный
    2 500 000 Р
    Агент
    +7 (908) Показать номер
    Посмотреть контакты
    2-к кв. Пензенская область, Пенза ул. Терновского, 21А (41.4 м) - Фото 1
    2-к кв. Пензенская область, Пенза ул. Терновского, 21А (41.4 м) - Фото 2
    2-комнатная квартира, общая площадь 41м², жилая 29м², кухня 6м²

    Код объекта: 1641626. Продается 2-комнатная квартира по ул. Терновского, 21А.Квартира расположена на 1 этаже 4-этажного кирпичного дома.Общая площадь - 41,4 кв.м.Жилая площадь - 29,5 кв.м.Кухня - 6,3 кв.м.В квартире есть ремонт, но под себя нужно приложить...
    • 41 м²
    • 2-ком
    • 1/4 эт.
    • кирпичный
    2 300 000 Р
    Агент
    +7 (908) Показать номер
    Посмотреть контакты

    Не нашли подходящего объявления?

    Оставьте заявку, и наши риэлторы подберут квартиру в районе Пензы

    (0)