9 950 000 Р 131 400 $ или 110 000

Информация о квартире

87 м2
Площадь
5 м2
Кухня
3
Комнаты
10
Этаж
17
Этажность
Развернуть
Агент
+7 (908) 531-16-23
Начать чат с агентом

3-к кв. Пензенская область, Пенза ул. Фабричная, 3 (87.1 м)

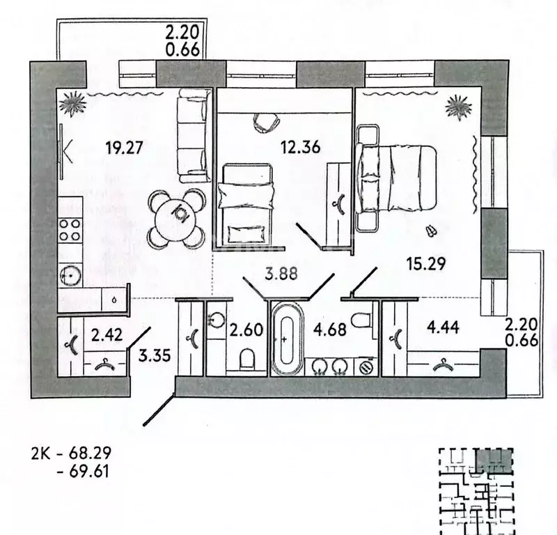
Продается просторная 3-комнатная квартира на улице Фабричная 3 .Квартира расположена на 10 этаже 17 этажного кирпичного дома 2017 года постройки.Общая площадь квартиры: 87,1мЖилая площадь: 53.3мПлощадь кухни 13,3мСанузел: раздельныйВысота потолков: 2,7мВ квартире современный ремонт , который позволяет новым хозяевам заехать в квартиру и сразу жить без дополнительных вложений . В квартире никто никогда не жил. Вся мебель и техника остаются новым владельцам . Все коммуникации сделаны с нуля. Также в квартире имеются две лоджии, с которых открывается прекрасный вид.Большой метраж квартиры отлично подойдет для семей с детьми . Дом имеет отличное расположение вблизи центра города. Что позволяет удачно совмещать личную и деловую жизнь.В шаговой доступности большое количество магазинов различного назначения. Множество, образовательных учреждений для детей совершенноазных возрастов ( детские сады, школы). Дом имеет отличную транспортную доступность, что очень удобно для людей без личного автотранспорта.Плюсом данного дома является хорошая управляющая компания, которая добросовестно выполняет свои обязанности. Благодаря чему двор и подъезды дома остаются в прекрасном состоянии.Квартира не имеет никаких обременений (ипотека) и детских долей , что позволяет получить быстрый выход на сделку.ТОРГ ВОЗМОЖЕН НЕ упустите возможность приобрести квартиру мечты Звоните Все подробности расскажу Код пользователя: 193778Номер в базе:

Читать полностью

    Для того, чтобы купить трехкомнатную квартиру по адресу: Пенза, Железнодорожный, ул. Фабричная, 3, позвоните по телефону +7 (908) 531-16-23. Торопитесь! Объявление №30092680690 о продаже трехкомнатной квартиры опубликовано 23 января 2026.

    Позвонить Написать
    9 950 000 Р131 400 $ или 110 000
    Агент
    +7 (908) 531-16-23
    Начать чат с агентом
    Похожие предложения
    2-к кв. Пензенская область, Пенза ул. Бакунина, 80 (82.0 м) - Фото 1
    2-к кв. Пензенская область, Пенза ул. Бакунина, 80 (82.0 м) - Фото 2
    2-комнатная квартира, общая площадь 82м², жилая 34м², кухня 14м²

    УНИКАЛЬНОЕ ПРЕДЛОЖЕНИЕ Продается уютная шикарная двухкомнатная квартира в центре города, но в отдалении от оживленной проезжей части - на ул. Бакунина д.80. Общая площадь квартиры 82 кв.м, расположена на 4м этаже шестиэтажного дома. Две изолированные...
    • 82 м²
    • 2-ком
    • 4/6 эт.
    • кирпичный
    10 000 000 Р
    Агент
    +7 (987) Показать номер
    Посмотреть контакты
    3-к кв. Пензенская область, Пенза ул. Измайлова, 58Ак1 (73.7 м) - Фото 1
    3-к кв. Пензенская область, Пенза ул. Измайлова, 58Ак1 (73.7 м) - Фото 2
    3-комнатная квартира, общая площадь 73м², жилая 35м², кухня 27м²

    Код объекта: 1665235.Уникальное предложение для семей в Пензе Продается евро 3-комнатная квартира по ул. Измайлова, 58Ак1.Эта Евро 3-комнатная квартира — идеальный выбор для тех, кто ценит комфорт и безопасность. Расположенная Жилищном комплексе Квартет...
    • 73 м²
    • 3-ком
    • 2/17 эт.
    • кирпичный
    9 900 000 Р
    Агент
    +7 (908) Показать номер
    Посмотреть контакты
    2-к кв. Пензенская область, Пенза проезд 2-й Свердлова, 25А (69.0 м) - Фото 1
    2-к кв. Пензенская область, Пенза проезд 2-й Свердлова, 25А (69.0 м) - Фото 2
    2-комнатная квартира, общая площадь 69м², жилая 27м², кухня 19м²

    В продаже уютная 2-комнатная квартира в деловом центре Пензы.Описание и параметры:Общая площадь 69 кв.м.Жилая площадь 28 кв.м.Площадь кухни-гостинной 19 кв.м.Два балкона на две стороныПодчистовая отделкаСан узел раздельныйГардеробная ниша Квартиру можно...
    • 69 м²
    • 2-ком
    • 11/13 эт.
    • кирпичный
    10 000 000 Р
    Агент
    +7 (986) Показать номер
    Посмотреть контакты
    3-к кв. Пензенская область, Пенза ул. Калинина, 4 (90.0 м) - Фото 1
    3-к кв. Пензенская область, Пенза ул. Калинина, 4 (90.0 м) - Фото 2
    3-комнатная квартира, общая площадь 90м², жилая 52м², кухня 11м²

    В продаже видовая квартира с отличной планировкой и новым качественным ремонтом в центре города Ремонт делали для себя, в квартире никто никогда не жил.Адрес: ул. Калинина, д. 4Кирпичный дом 2012 года постройки, застройщик ОАО Пензапромстрой. Огороженная...
    • 90 м²
    • 3-ком
    • 5/14 эт.
    • кирпичный
    9 950 000 Р
    Агент
    +7 (986) Показать номер
    Посмотреть контакты
    3-к кв. Пензенская область, Пенза проезд 5-й Виноградный, 8 (100.7 м) - Фото 1
    3-к кв. Пензенская область, Пенза проезд 5-й Виноградный, 8 (100.7 м) - Фото 2
    3-комнатная квартира, общая площадь 100м², жилая 53м², кухня 12м²

    Код объекта: 1978584.Продаётся светлая и по-настоящему тёплая 3-комнатная квартира по адресу: 5-й Виноградный проезд, 8.Квартира находится на 10 этаже кирпичного дома 2006 года постройки.Сверху — полноценный технический этаж, поэтому здесь тихо, тепло...
    • 100 м²
    • 3-ком
    • 10/10 эт.
    • кирпичный
    9 900 000 Р
    Агент
    +7 (908) Показать номер
    Посмотреть контакты

    Не нашли подходящего объявления?

    Оставьте заявку, и наши риэлторы подберут квартиру в районе Пензы

    (0)