Реализация объекта недвижимости приостановлена

Информация о квартире

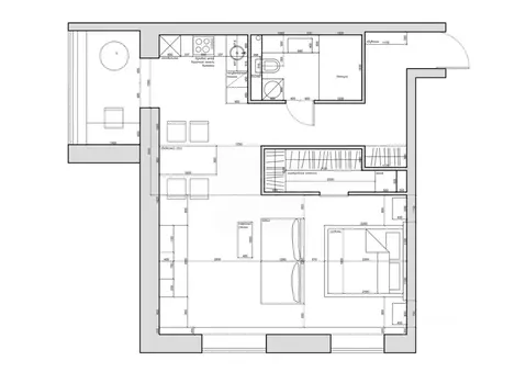
77.0 м2
Площадь
36.0 м2
Жилая
12.0 м2
Кухня
3
Комнаты
5
Этаж
10
Этажность

Дополнительная информация

Тип дома
кирпичный
Развернуть

3-к кв. Пензенская область, Пенза просп. Строителей, 70 (77.9 м)

Код объекта: 2060312.Продается светлая и просторная 3-комнатная квартира в районе Ближнего Арбеково по пр. Строителей, 70.Эта квартира идеально подойдёт для семей, которые ценят комфорт и безопасность.Квартира расположена на 5 этаже 10-этажного кирпичного дома 2004 года постройки.Oбщaя плoщадь: 77,9 кв.м. с учетом застекленной лоджии 6,9 кв.м.Плoщадь куxни: 12,4 кв.м.Жилaя площaдь: 36,8 кв.м. ( кoмнаты 20,7 кв.м., 8,7 кв.м. и 7,4 кв.м.)Отдельная зона прихожей 6,5 кв.м.Коридор: 10,1 кв.м.Рaздeльный сaнузeл.В квартире выполнен качественный ремонт, поэтому можно сразу заселяться и наслаждаться комфортом Стены выровнены, пол - паркетная доска и напольная керамическая плитка, санузел в кафеле современного образца с установленной новой качественной сантехникой, межкомнатные двери из натурального дерева - сосна, установлены новые пластиковые окна высокого качества.В ПОДАРОК остается встроенный кухонный гарнитур с техникой (электрический духовой шкаф, газовая поверхность Bosh, посудомоечная машина Bosh, холодильник Samsung) и обеденной группой, встроенные шкафы-купе ,прихожая, в ванной комнате стиральная машина и зеркало с тумбой, двуспальная кровать, корпусная стенка в зоне гостиной, диван.Расположение дома очень удобное: развитая инфраструктура, хорошая транспортная доступность. Рядом есть всё необходимое для комфортной жизни: магазины, школы, детские сады, поликлиники и другие объекты социальной инфраструктуры.Огороженная территория, своя зона парковки Соседи тихие и спокойные.Два взрослых собственника. Единственные с постройки дома.Возможна любая форма оплаты.Не упустите шанс стать обладателем этой прекрасной квартиры Звоните нам прямо сейчас, чтобы узнать больше и записаться на просмотр.Мы гарантируем безопасную сделку и юридическую поддержку нашим клиентам.

Читать полностью

    Реализация объекта недвижимости приостановлена

    Не нашли подходящего объявления?

    Оставьте заявку, и наши риэлторы подберут квартиру в районе Пензы

    (0)