Реализация объекта недвижимости приостановлена

Информация о помещении и здании

5
Этаж
7
Этажность
Развернуть

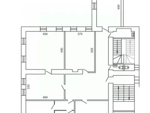
Офис в Пензенская область, Пенза Московская ул., 27 (749 м)

Сдаю помещение пл. 749 кв.м в БЦ Новый Арбат ул. Московская, 27 целый этаж Общая площадь помещения - 749 кв.м, тип помещений кабинетный (офисный), расположено на 5 эт./7 эт. здания бизнес-центра. Сдается целым этажом Помещение состоит из 14 офисов разных площадей, зоны отдыха и питания персонала на мини кухне, серверной, 2 сан. узла, гардеробной, мини склада.Отличное состояние, современная офисная отделка, пожарная охрана и сигнализация, общее кондиционирование, интернет + телефон, электрическая мощность 30 кВт.Цена: за 1 кв.м. с учетом ком. услуг + электричество по счетчику.Сдается от собственника

Читать полностью

    Реализация объекта недвижимости приостановлена

    Не нашли подходящего объявления?

    Оставьте заявку, и наши риэлторы подберут офис в районе Пензы

    (0)