24 000 Р 312 $ или 263

Информация об помещении

1
Этаж

Состояние и оснащение

Количество этажей
2
Развернуть
Агент
+7 (986) 935-48-21
Начать чат с агентом

Помещение свободного назначения в Пензенская область, Пенза ул. ...

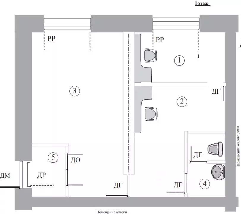
Предлагаем помещение в начале Терновки, 48 кв. м. на 1 этаже нежилого здания. Адрес: Баумана, 42а.Здание на первой линии, есть парковка. Территория охраняемая, доступ круглосуточный. Использовалось под швейный цех, есть 3 небольших окна и кондиционер. Планировка в виде тамбура, основного зала и подсобки (ранее была душевая). Все коммуникации, интернет. Стоимость 24000р. + коммунальные платежи. Арт.

Читать полностью
    Позвонить Написать
    24 000 Р312 $ или 263
    Агент
    +7 (986) 935-48-21
    Начать чат с агентом
    Похожие предложения
    Помещение свободного назначения в Пензенская область, Пенза просп. ... - Фото 1
    Помещение свободного назначения в Пензенская область, Пенза просп. ... - Фото 2
    Арт.. ВАШ БИЗНЕС ЖДЕТ ОЛИМП ПРЕСТИЖНЫЕ КОММЕРЧЕСКИЕ ПОМЕЩЕНИЯ В ЦЕНТРЕ АРБЕКОВОИщете идеальное место для развития или масштабирования вашего бизнеса в Пензе?ТРК ОЛИМП это центр притяжения для тысяч жителей и гарантия успеха для вашего дела Мы предлагаем...
    • 1/4 эт.
    24 000 Р
    Агент
    +7 (987) Показать номер
    Посмотреть контакты
    Помещение свободного назначения в Пензенская область, Пенза Московская ... - Фото 1
    Помещение свободного назначения в Пензенская область, Пенза Московская ... - Фото 2
    Арт.Предлагаем помещение для аренды для вашего бизнеса, площадью 27 кв.м.Месторасположение: ул. Московская,27, ТОЦ Новый Арбат, 2 этаж.Все детали при осмотре.
    • 2/7 эт.
    25 000 Р
    Агент
    +7 (987) Показать номер
    Посмотреть контакты
    Помещение свободного назначения в Краснодарский край, Краснодар ул. ... - Фото 1
    Помещение свободного назначения в Краснодарский край, Краснодар ул. ... - Фото 2
    Сдаётся в аренду коммерческое помещение площадью 20,5 кв. м. с отдельным входом с улицы в ЖК Сказка Град . Объект обладает высокой проходимостью благодаря удачному расположению в зоне организованного одностороннего автомобильного движения — все транспортные...
    • 1/24 эт.
    25 000 Р
    Агент
    +7 (918) Показать номер
    Посмотреть контакты
    Помещение свободного назначения в Нижегородская область, Бор пос. ... - Фото 1
    Помещение свободного назначения в Нижегородская область, Бор пос. ... - Фото 2
    Сбер А предлагает к продаже помещения площадью 41,8 кв.м, расположенного по адресу: Нижегородская область, г. Бор, рп. Большое Пикино, ул. Больничная, д. 24Реализация посредством проведения торгов на электронной площадке Сбербанк-АСТ.Номер процедуры:...
    • 1/1 эт.
    23 424 Р
    Агент
    +7 (912) Показать номер
    Посмотреть контакты
    Помещение свободного назначения в Новосибирская область, Новосибирский ... - Фото 1
    Помещение свободного назначения в Новосибирская область, Новосибирский ... - Фото 2
    Арт.С ремонтом и частично мебельюИспользовалась под маникюрную Комиссия 50 с арендатора
    • 2/9 эт.
    25 000 Р
    Агент
    +7 (913) Показать номер
    Посмотреть контакты

    Не нашли подходящего объявления?

    Оставьте заявку, и наши риэлторы подберут псн в районе Пензы

    (0)