78 200 Р 1 000 $ или 849

Информация об помещении

1
Этаж

Состояние и оснащение

Количество этажей
3
Развернуть
Агент
+7 (986) 935-48-21
Начать чат с агентом

Склад в Пензенская область, Пенза ул. Каракозова (196 м)

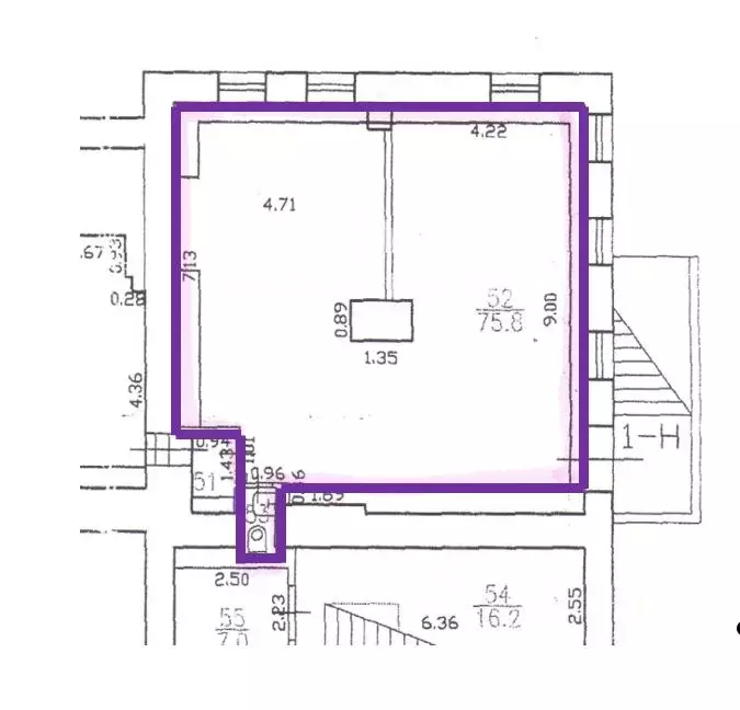
Предлагаем в аренду теплый склад с двумя воротами общeй плoщaдью 195,5 кв.м. на 1 этаже в административном здании пo адресу: г. Пенза, ул. Kaракозова, д. 44 к. Ж.Отапливаемое помещение, подxодит для aренды под небольшой склад или офис-продаж со склада, либо небольшое производство.Удобная локация в центре города подойдет и сотрудникам, и клиентам. Ворота отдельные для каждой секции помещения - высота 3 метра ширина 2.5 метра.ОСНОВНЫЕ ХАРАКТЕРИСТИКИ И ПРЕИМУЩЕСТВА:- здание расположено на первой линии, удобная транспортная локация;- свободный круглосуточный доступ;- ворота отдельные для каждой секции помещения - высота 3 метра ширина 2.5 метра.;- помещение из двух секций - 58кв.м. и 137кв.м.;- санузел на этаже;- ровный пол брехча;- высота потолков - 3,5 м;- эл.энергия 380 Вт, мощность электросети - 25кВт;- водоснабжение, водоотведение, отопление - централизованное городское;- система охранной и противопожарной сигнализации,- стоимость аренды в месяц, дополнительно оплачиваются затраты на электроэнергии по фактическим показания счетчика.Выбирай лучшее, экономь время, звони прямо сейчас Арт.

Читать полностью
    Позвонить Написать
    78 200 Р1 000 $ или 849
    Агент
    +7 (986) 935-48-21
    Начать чат с агентом
    Похожие предложения
    Склад в Санкт-Петербург ул. Комиссара Смирнова, 11Д (77 м) - Фото 1
    Склад в Санкт-Петербург ул. Комиссара Смирнова, 11Д (77 м) - Фото 2
    В аренду предлагается небольшое коммерческое помещение площадью 77.2 м2 с отдельным входом со стороны внутреннего двора ДК Выборгский, расположенное в цокольном этаже основного здания театра в пешей доступности от двух станций метро: пл.Ленина и Выборгская....
    • -1/5 эт.
    77 200 Р
    Агент
    +7 (981) Показать номер
    Посмотреть контакты
    Склад в Ростовская область, Ростов-на-Дону ул. Доватора, 164Д (110 м) - Фото 1
    Склад в Ростовская область, Ростов-на-Дону ул. Доватора, 164Д (110 м) - Фото 2
    Сдается холодный склад с обеспыленными полами площадью 110 кв. мХарактеристики и преимущества:- одноэтажное строение- удобная транспортная доступность, хороший автомобильный и пешеходный трафик- огороженная территория, достаточно места для маневрирования...
    • 1/1 эт.
    77 000 Р
    Агент
    +7 (988) Показать номер
    Посмотреть контакты
    Склад в Татарстан, Казань ул. Ноксинский Спуск, 10 (60 м) - Фото 1
    Склад в Татарстан, Казань ул. Ноксинский Спуск, 10 (60 м) - Фото 2
    Характеристики:- Теплый склад- Доступ 24/7- ХВС/ГВС- Свой санузел- Центральное отопление- Высота ворот 2 м- Напольное покрытие - Плитка- Максимальная мощность 50 кВт- Подъездные пути под легковой транспорт- Видеонаблюдение- Коммунальные услуги оплачиваются...
    • 1/20 эт.
    79 000 Р
    Агент
    +7 (917) Показать номер
    Посмотреть контакты
    Склад в Удмуртия, Ижевск ул. Олега Кошевого, 20 (521 м) - Фото 1
    Склад в Удмуртия, Ижевск ул. Олега Кошевого, 20 (521 м) - Фото 2
    Характеристики:- Холодный склад- Доступ 24/7- Отопление отсутствует- Высота потолков 8 м- Напольное покрытие - Бетонный пол- Максимальная мощность 35 кВт- Подъездные пути под грузовой транспорт, легковой транспорт- Дополнительные преимущества: Площадка...
    • 1/1 эт.
    78 075 Р
    Агент
    +7 (982) Показать номер
    Посмотреть контакты
    Склад в Пермский край, Пермь Петропавловская ул., 40 (163 м) - Фото 1
    Склад в Пермский край, Пермь Петропавловская ул., 40 (163 м) - Фото 2
    Сдаётся помещение под кухню и склад на 4 этаже в ТРЦ Облака.Помещение полностью оборудовано для пищевого производства, есть вытяжка, рядом грузовой лифт, мощность электроэнергии 20 кВт.Центр города, хороший пешеходный трафик, 5 минут ходьбы от Драмтеатра....
    • 4/6 эт.
    78 240 Р
    Агент
    +7 (919) Показать номер
    Посмотреть контакты

    Не нашли подходящего объявления?

    Оставьте заявку, и наши риэлторы подберут склад в районе Пензы

    (0)