52 000 000 Р 636 800 $ или 548 800

Информация об помещении

1
Этаж

Состояние и оснащение

Количество этажей
1
Развернуть
Агент
+7 (986) 935-48-21
Начать чат с агентом

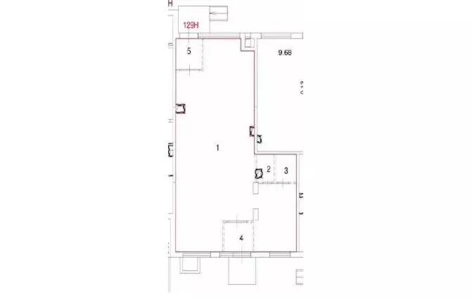
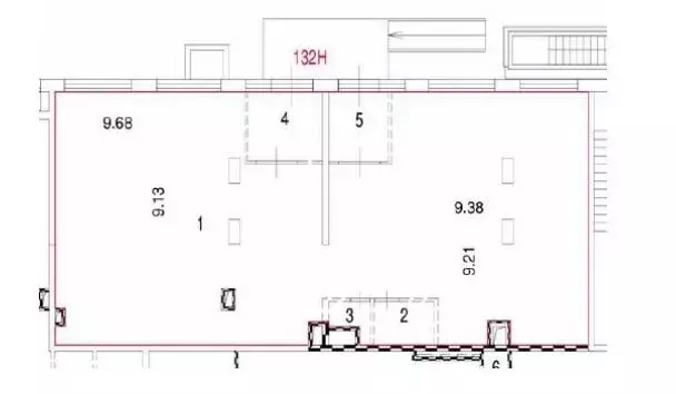
Торговая площадь в Пензенская область, Заречный Заречная ул. (808 м)

Продается новый ТЦ в центре Заречного с хорошим ремонтом по адресу: г. Заречный, ул. Заречная 12 БВысокий трафик, локация жилого массива. Сетевые арендаторы. ОТ СОБСТВЕННИКА. БЕЗ КОМИССИИ. Характеристики: -расположен в динамичном районе города с плотной жилой и коммерческой застройкой; -несколько входов; -все коммуникации; -центральное отопление и канализация -высота потолков 4м; -охранно пожарная сигнализация; -приточно вытяжная вентиляция; -удобные подъездные пути, большая парковка; -отдельная зона для погрузочно разгрузочных работ; -внутреннее и наружное видеонаблюдение. Для инвесторов хорошее предложение - срок окупаемости менее 9 лет. Цена ТЦ Звоните нам прямо сейчас и мы предоставим Вам любую дополнительную информацию. ГАРАНТИРУЕМ БЕСПЛАТНОЕ ЮРИДИЧЕСКОЕ СОПРОВОЖДЕНИЕ С НАШЕЙ СТОРОНЫ.Арт.

Читать полностью
    Позвонить Написать
    52 000 000 Р636 800 $ или 548 800
    Агент
    +7 (986) 935-48-21
    Начать чат с агентом
    Похожие предложения
    Торговая площадь в Москва ул. Любучанская, 1 (134 м) - Фото 1
    Торговая площадь в Москва ул. Любучанская, 1 (134 м) - Фото 2
    Предложение на продажу 61376.Парковка: наземная.ЖК Остафьево. Срок получения ключей - до 30.12.2025 года. . Назначение: свободного назначения (нежилое);. Помещение правильной прямоугольной формы;. Расположено на 1 этаже;. Подземной парковки нет.. Высота...
    • 1/14 эт.
    52 000 000 Р
    Агент
    +7 (932) Показать номер
    Посмотреть контакты
    Торговая площадь в Москва ул. Гастелло, 30 (72 м) - Фото 1
    Торговая площадь в Москва ул. Гастелло, 30 (72 м) - Фото 2
    Предложение на продажу 60245.Продажа помещения свободного назначения в новом ЖК бизнес-класса SOKOLNIKI, по адресу: ВАО, Москва, ул. Гастелло, 30, площадью 72 кв.м. В пешей доступности находятся две станции метро — Сокольники и Электрозаводская ....
    • 1/33 эт.
    51 178 400 Р
    Агент
    +7 (932) Показать номер
    Посмотреть контакты
    Продажа торгового помещения, Звенигород, пр-д Ветеранов - Фото 1
    Продажа торгового помещения, Звенигород, пр-д Ветеранов - Фото 2
    Продажа торгового помещения, Звенигород, пр-д Ветеранов - Фото 3
    Продажа торгового помещения, Звенигород, пр-д Ветеранов - Фото 4
    Продажа торгового помещения, Звенигород, пр-д Ветеранов - Фото 5
    общая площадь 197.6м², реализуемая площадь 197.6м²

    Продажа торгового помещения в новом ЖК Ракитня ( класс комфорт ) в Звенигороде. Арендаторы - сетевой алкомаркет и ПВЗ Валдбериз. Общая площадь - 197,6 кв.м., отдельный вход с фасада, потолки 3,5 м, открытая эффективная планировка, удобная зона разгрузки...
    • 197.6 м²
    • 1/4 эт.
    51 900 000 Р
    Агент
    +7 (903) Показать номер
    Посмотреть контакты
    Продажа торгового помещения, м. Автозаводская, ул. Мастеркова - Фото 1
    Продажа торгового помещения, м. Автозаводская, ул. Мастеркова - Фото 2
    Продажа торгового помещения, м. Автозаводская, ул. Мастеркова - Фото 3
    общая площадь 31.6м², реализуемая площадь 31.6м²

    Помещение площадью 31,6 кв.м расположено на 1-м этаже 9-ти этажного жилого дома, отдельный вход с фасада, витринное остекление, 1-я линия домов, вход/выход из станции метро «Автозаводская». Отличное торговое окружение. Сверхинтенсивный пешеходный поток...
    • 31.6 м²
    • 1/9 эт.
    51 000 000 Р
    Агент
    +7 (903) Показать номер
    Посмотреть контакты
    Торговое помещение 195.8 м2 - Фото 1
    реализуемая площадь 195.8м²

    Продается стрит-ритейл площадью 195.8 кв. м м. Пятницкое шоссе, район Митино. Помещение располагается в 1-этажном торгово-общественном центре. Располагается на 1 этаже здания, возможное назначение - прочее. Высота потолков 3 м. , здание на первой линии....
    • 195.8 м²
    • 1/1 эт.
    52 800 000 Р
    Агент
    +7 (938) Показать номер
    Посмотреть контакты

    Не нашли подходящего объявления?

    Оставьте заявку, и наши риэлторы подберут торговое помещение в районе Заречного

    (0)