40 000 000 Р 524 600 $ или 448 700

Информация об помещении

цоколь
Этаж

Состояние и оснащение

Количество этажей
15
Развернуть
Агент
+7 (986) 935-48-21
Начать чат с агентом

Помещение свободного назначения в Пензенская область, Пенза ул. ...

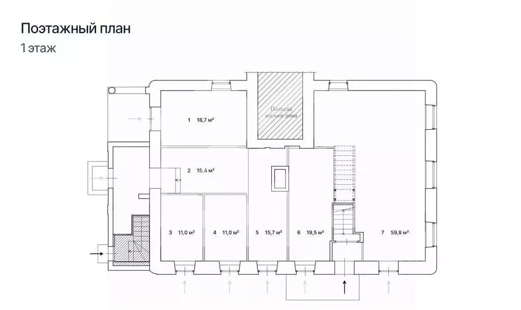
Уникальная возможность для вашего бизнеса на улице Карпинского, 33а Предлагается к продаже просторное нежилое помещение площадью 688,3 кв.м, расположенное на цокольном этаже кирпичного дома 2007 года постройки. Несмотря на цокольное расположение, помещение оснащено небольшими окнами, обеспечивающими естественное освещение.Идеальное расположение для привлечения клиентов:Рядом с элитным ЖК Скала от Рисан: Строящийся жилой комплекс гарантирует постоянный поток потенциальных клиентов.Высокая проходимость: Близость к крупным торговым центрам Метро и Узбекистан обеспечивает непрерывный поток посетителей.Отличная транспортная доступность: Высокий автомобильный трафик делает ваше местоположение заметным и удобным для клиентов.Помещение готово к любым начинаниям:Благодаря своей универсальности, данное помещение идеально подходит для переоборудования под практически любой вид деятельности.Основные преимущества, которые вы получаете:Простор для гостей: Основной зал на 100 посадочных мест, банкетный зал на 90 мест и уютный VIP-зал на 15 персон.Полностью оборудованная кухня: Готова к работе с первого дня.Собственная пивоварня: Производительность до 20 тонн в месяц отличное дополнение для заведения общественного питания.Просторная холодильная комната: Объем 40 куб.м для хранения продуктов.Комфорт и удобство: 5 санузлов для посетителей и персонала.Мощная инфраструктура: Электрическая мощность 110 кВт и все централизованные коммуникации.Безопасность и комфорт: Установлены система кондиционирования, охранно-пожарная сигнализация с выводом на пульт.Удобный доступ: 3 отдельных входа обеспечивают гибкость в организации потоков посетителей.Полная комплектация: Вся мебель, техника и оборудование могут быть переданы по согласованию.Собственная парковка: 5 машиномест для удобства ваших клиентов и сотрудников.Выгодная цена: Всего за квадратный метр отличное предложение на рынке Не упустите свой шанс Звоните прямо сейчас, чтобы договориться о просмотре и обсудить детали.Арт.

Читать полностью
    Позвонить Написать
    40 000 000 Р524 600 $ или 448 700
    Агент
    +7 (986) 935-48-21
    Начать чат с агентом
    Похожие предложения
    Помещение свободного назначения (332.5 м) - Фото 1
    Помещение свободного назначения (332.5 м) - Фото 2
    Арт.. Представляем уникальное предложение: просторное коммерческое помещение 332,5 м в самом сердце Пензы, расположенное на цокольном этаже престижного офисно-жилого комплекса Идеально подходит как для продолжения успешного бизнеса (действующий саунно-оздоровительный...
    • 1/15 эт.
    39 900 000 Р
    Агент
    +7 (902) Показать номер
    Посмотреть контакты
    Помещение свободного назначения в Пензенская область, Пенза ул. ... - Фото 1
    Помещение свободного назначения в Пензенская область, Пенза ул. ... - Фото 2
    Арт.. Инвестиционный лот 1 в Пензе 267 м коммерческой площади в ЖК Гранд Парк — ваша дверь к пассивному доходу и росту капитала Где деньги делают историю?Уникальный объект в эпицентре жизни Октябрьского района: первая линия, пешеходный трафик 15 000+...
    • 1/20 эт.
    40 050 000 Р
    Агент
    +7 (987) Показать номер
    Посмотреть контакты
    Продается ПСН 500 м2 - Фото 1
    Продается ПСН 500 м2 - Фото 2
    Продается ПСН 500 м2 - Фото 3
    Продается ПСН 500 м2 - Фото 4
    Продается ПСН 500 м2 - Фото 5
    Продается ПСН 500 м2 - Фото 6
    Продается ПСН 500 м2 - Фото 7
    Продается ПСН 500 м2 - Фото 8
    полезная площадь 500м²

    Продается кинотеатр на два зала. Много дополнительных площадей под сферу услуг. Новое здание. Кинотеатр очень нужен городу. Горожанам и отдыхающим гостям города приходится ездить за 70 км. Помещение свободного назначения площадью 500 м2, предоставляется...
    • 500 м²
    • 2/3 эт.
    40 000 000 Р
    Агент
    +7 (991) Показать номер
    Посмотреть контакты
    Прямая продажа от застройщика - Фото 1
    Прямая продажа от застройщика - Фото 2
    Прямая продажа от застройщика - Фото 3
    Прямая продажа от застройщика - Фото 4
    Прямая продажа от застройщика - Фото 5
    Прямая продажа от застройщика - Фото 6
    Прямая продажа от застройщика - Фото 7
    Прямая продажа от застройщика - Фото 8
    Прямая продажа от застройщика - Фото 9
    Прямая продажа от застройщика - Фото 10
    Прямая продажа от застройщика - Фото 11
    Прямая продажа от застройщика - Фото 12
    Прямая продажа от застройщика - Фото 13
    Прямая продажа от застройщика - Фото 14
    Прямая продажа от застройщика - Фото 15
    Прямая продажа от застройщика - Фото 16
    Прямая продажа от застройщика - Фото 17
    полезная площадь 203.8м²

    Площадь от 104,8 кв. м до 308,6 м2, корпус 2, первый этаж, 1 вход с улицы, 1 вход со двора. Центральное местоположение, рядом с ТЦ, к помещению есть свободный подъезд и напротив входа есть стихийная парковка. Высота потолков 5,4 м, выделенная мощность...
    • 203.8 м²
    • 1/9 эт.
    40 800 000 Р
    Агент
    +7 (495) Показать номер
    Посмотреть контакты
    Помещение свободного назначения в Москва ул. Большая Ордынка, 7 (168 ... - Фото 1
    Помещение свободного назначения в Москва ул. Большая Ордынка, 7 (168 ... - Фото 2
    ==ЛОТ 223462 == ОТ СОБСТВЕННИКА, БЕЗ КОМИССИИ. Прямая продажа от собственника Подвальное помещение , планировка-зал. Отдельный вход со двора, перед входом арка. Есть возможность размещения вывески, все коммуникации, приточно-вытяжная вентиляция. Стены...
    • -2/5 эт.
    40 000 000 Р
    Агент
    +7 (923) Показать номер
    Посмотреть контакты

    Не нашли подходящего объявления?

    Оставьте заявку, и наши риэлторы подберут псн в районе Пензы

    (0)